Роскошь в двух уровнях
🏡 Общая информация:
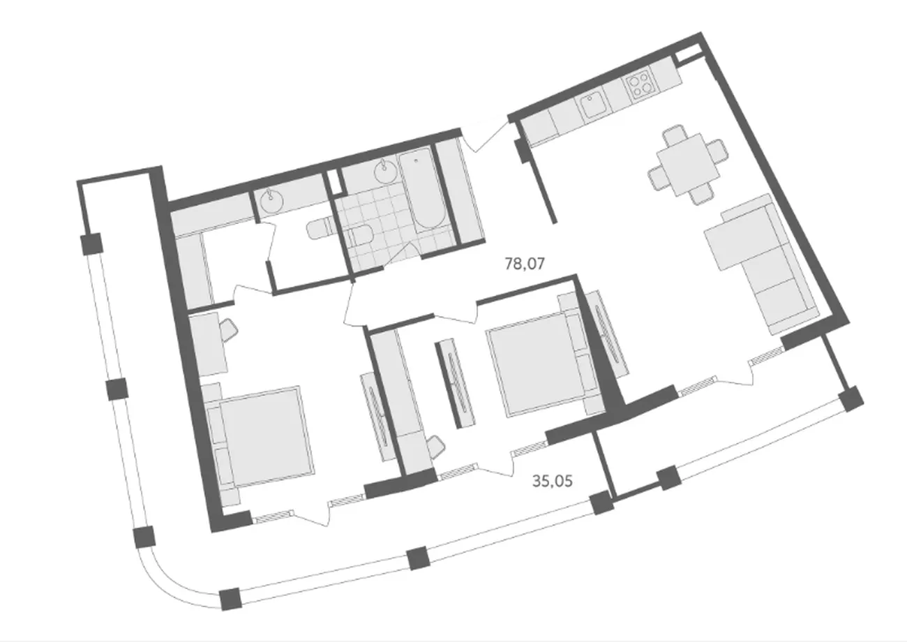
Просторная 2-комнатная квартира с огромной террасой в пятизвездочном апарт-отеле «Grand Life» в центре Батуми. Общая площадь 113.12 м² (жилая — 78.07 м²) включает поистине роскошный балкон площадью 35.05 м², предлагая формат проживания уровня private residence.
📐 Планировка и преимущества:
Квартира предлагает две изолированные комнаты — просторную спальню и большую гостиную, совмещенную с кухней. Уникальной характеристикой является терраса-балкон площадью свыше 35 м², которая представляет собой отдельную outdoor-зону для отдыха, приема гостей или создания зимнего сада. Высокие потолки, панорамное остекление во всю стену и отделка премиум-класса по стандарту luxury-отеля подчеркивают статусность этого лота.
👨👩👧 Подходит для:
-
Для жизни на уровне резиденции: Идеальный вариант для семьи, ценящей исключительный комфорт и пространство. Две изолированные комнаты обеспечивают приватность, а терраса становится центром семейного отдыха. Полный спектр сервисов отеля (консьерж, детский центр, спа) создает беззаботную среду.
-
Стратегических инвесторов: Это актив премиум-сегмента с максимальным потенциалом дохода. Управление международной сетью BWH Hotels гарантирует до 12% годового дохода, программа обратного выкупа и статус объекта в единственном пятизвездочном city-hotel Батуми обеспечивают высочайшую ликвидность и рост капитализации.
-
Для представительских целей: Готовое решение для приобретения статусной недвижимости для деловых визитов или в качестве второй резиденции у моря с безупречным сервисом.
📍 Дополнительно:
Проект расположен в географическом центре Батуми, в нескольких минутах ходьбы от моря и главных парков. На территории: открытый бассейн, wellness-центр, ресторан с концепцией грузинского виноделия, зимний сад. Квартира находится на одном из верхних этажей с панорамными видами на город.
Интересует эксклюзивное предложение?
Для получения детальной презентации, финансового плана с расчетом доходности и условий приобретения оставьте заявку на сайте или напишите нам в WhatsApp для конфиденциальной консультации.















