Современная однушка с большим балконом
🏡 Общая информация:
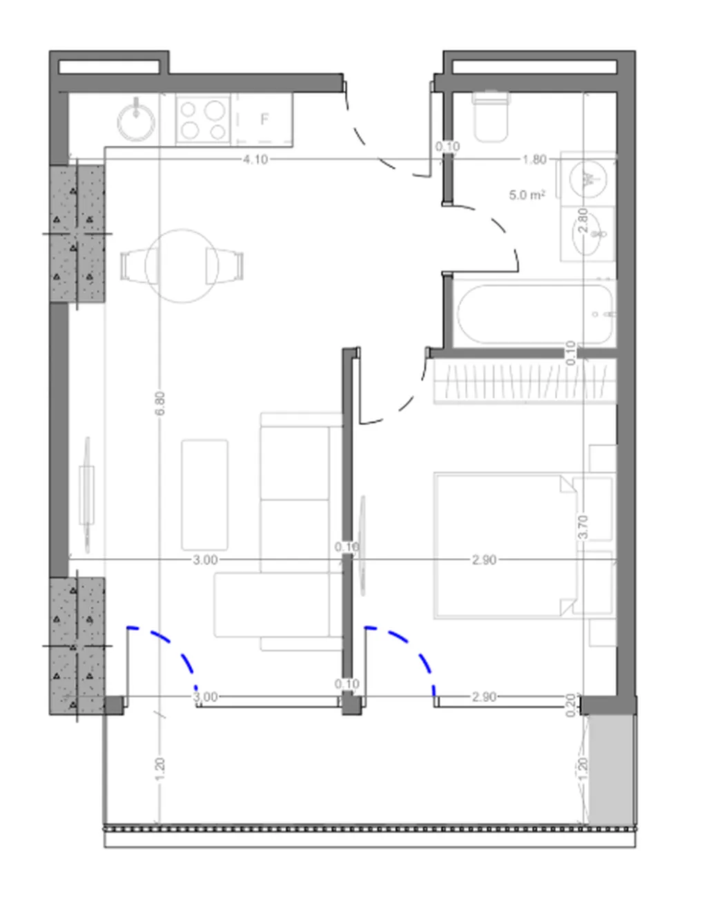
Однокомнатная квартира • Общая площадь: 47.40 м² • Жилая площадь: 39.30 м² • Балкон: 8.10 м² • Жилой комплекс «Serenade» • Район Новый Бульвар, Батуми.
📐 Планировка и преимущества:
Квартира с продуманной современной планировкой. Просторное светлое помещение (39.30 м²) служит одновременно гостиной, кухней и спальной зоной, создавая ощущение свободы и простора. Большой балкон (8.10 м²) станет излюбленным местом отдыха и значительно расширит жилое пространство. Панорамное остекление и расположение на 10-м этаже обеспечивают прекрасную инсоляцию и открывают привлекательные виды. В квартире выполнена качественная чистовая отделка.
👨👩👧 Подходит для:
-
Для выгодных инвестиций: Однокомнатные квартиры в новом комплексе на Новом Бульваре — высоколиквидный актив. Постоянный спрос на аренду от туристов и сезонных гостей гарантирует стабильный пассивный доход и отличные перспективы роста стоимости.
-
Для туристического бизнеса: Апартаменты такого формата в шаге от моря и всей курортной инфраструктуры идеально подходят для посуточной аренды. Большой балкон является значительным конкурентным преимуществом.
-
Для комфортного проживания: Прекрасный вариант для одного человека или пары, ищущих современное жилье в самом центре событий. Высокий этаж обеспечивает тишину и уединение, а развитая инфраструктура района — все необходимое для жизни.
📍 Дополнительно:
Квартира расположена на 10-м этаже. Жилой комплекс находится в пешей доступности от моря, набережной, многочисленных кафе, ресторанов, магазинов и транспортных остановок.
Интересует расчет доходности или специальные условия?
Чтобы получить детальную информацию по объекту и персональное коммерческое предложение, оставьте заявку на нашем сайте или напишите в WhatsApp.















